Leased

Unit 5, 3 Stephen St, Norwood

$650 per week

2 2 2

Stunning two bedroom + one in trendy Norwood Green

KEY FEATURES
- High end finish executive living in Norwood Green
- Just a stroll to the Heart of Norwood
- Premium living has a new address


Inspections are by appointment only - please click “GET IN TOUCH” to submit your details and one of our team will be in touch via email.

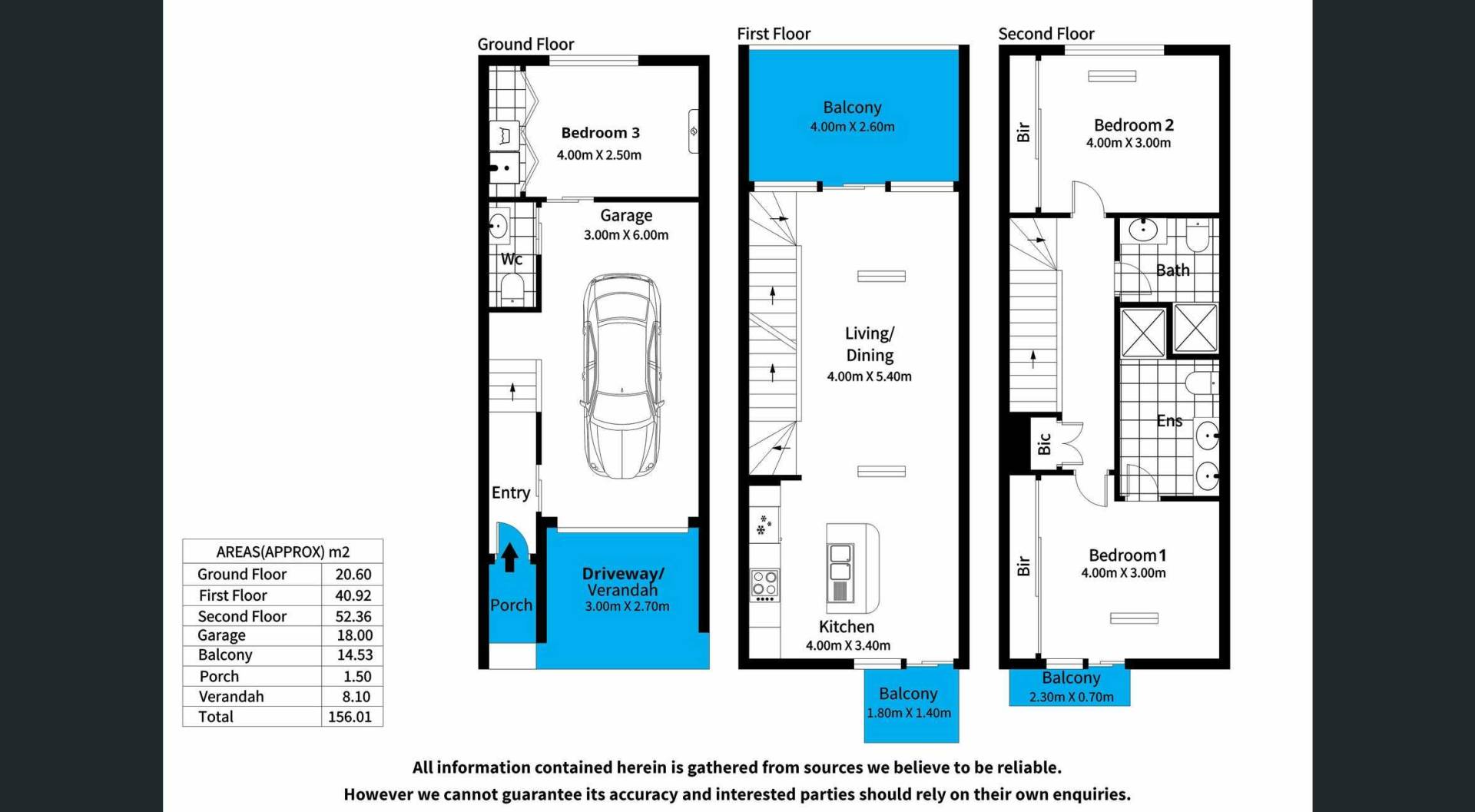
- 3 Levels of Executive Living
- 2 generous bedrooms fill the Second Level
- Master Sleeping quarters with an impressive Ensuite and private Balcony
- 2nd Bedroom with wall to wall storage and lively outlook
- Master bathroom with LED lighting and stylish décor
- 3rd bedroom or home office on the ground floor, perfect for working from home
- Top shelf Kitchen with stone benchtops, Integrated SMEG appliances and gas cooking
- Open Plan living with raised ceilings and great balconies at both ends.
- Ducted reverse Cycle Air
- Single Lockup garage and off Street for one more
- Just a walk to almost everything you need.
- Be apart of the new development and take advantage of the lifestyle offering
- The best landlords and a best agent to boot

LEASE TERM: 12 Months
AVAILABLE FROM: Early November 2023
WATER CHARGES: Tenant to pay supply and water use
PET POLICY: Not Permitted
INSPECTION: By Private Appointment

2 2 2

Details

Available Leased
Property Type Rental
Category House

Tools

Share This Property